眾所周知,泳池燈的安裝場所涉及到人身安全,發生電氣事故的危險性較大,廣州千葉水設備今天就來談談對于泳池燈的安裝及泳池電氣分區上的事!
國家對這些涉水場所區域的電氣安全都有相應的規范,比如《民用建筑電氣設計規范》、《低壓電氣裝置 第7-702部分:特殊裝置或場所的要求 游泳池和噴泉》等,此外國家標準設計圖集《等電位聯結安裝》對這些場所的等電位聯結也有示例。
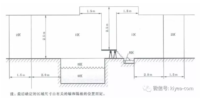
我們都知道泳池燈是裝在泳池里面的,但可能很少有人知道,泳池燈的安裝跟變壓器的安裝,位置是有要求的,泳池及其周邊,在相應的標準里,分成了3個區域。如下圖所示。

0區包括水池部分,含游泳池、熱水池、訓練池、洗腳池等任何積水處。
1區包含0區邊界線、距水池(含積水處)邊緣2m的垂直面、預期有人占用的地面或表面、高出預期有人的地面或表面2.5m的水平面。
2區為1區外邊沿垂直面和與此垂直面相距1.5m的平行面、預期有人占用的地面或表面、高出預期有人占用的地面或表面2.5m的水平面。
根據國際電工委員會標準IEC60364-7-702,我國已將IEC轉化成國標GB16895.19,對于不同的分區明確規定應執行的保護標準,其要點如下:
1、附加防護
在0區、1區和2區內的所有裝置外可導電部分,應用輔助等電位聯結導體連接并和這些區域內的設備外露可導電部分的保護導體相連接。
2、電氣設備的選擇和安裝
電氣設備應不低于下列防護等級:
——0區:IPX8;
——1區:IPX5;但是建筑物內平時不用噴水清洗的游泳池,可采用IPX4;
——2區: IPX2用于室內場所;IPX4用于室外場所;IPX5用于可能用噴水清洗的場所。
用于水下長期使用的燈具防護等級必須是IP68!那什么是IP68。
請看下表:(P后第一位代表防塵等級,第二位代表防水等級)。
對于游泳燈的安裝,按相應的規定,0區內只允許用標稱電壓不超過12V的安全超低壓供電,其安全電源應設置在2區以外的地方。也就是泳池燈的電壓必須在12V以下,根據安裝環境的特性,防護等級為IP68,燈具外殼應該用防腐蝕的材料。
那么,安全電源在2區以外,意味著變壓器至少要離燈3.5米,這么遠,是用一個燈一個變壓器還是幾個燈一個變壓器?答案是視情況而定,如果燈具少,可以用一個燈一個變壓器,燈多就幾個燈一個變壓器。一定要注意,變壓器要放在2區以外。
對于線材選用,也有相關規定,由變壓器配出的12v低壓線路宜選用加強絕緣的銅芯電線或電纜。
如果是需要在2區以外的區域安裝照明燈具,可以安裝供電電壓220/380V的燈具。同時根據規定:“當照明回路未裝設漏電保護電器時,照明燈具和照明接線盒不應裝在游泳池上方或距池內壁水平距離小于1.5m的上部空間。但燈具或接線盒在距離游泳池最高水面4m以上裝設時,則不受上述規定限制。"也就是說,在這些區域內安裝照明燈具和接線盒,應該安裝漏電保護器。這條規定與附表稍稍有些沖突,因為附表中規定,0區及1區內是不允許裝設接線盒、開關設備及輔助設備的。實際施工時還是按附表嚴格點好,安全。
到這貌似就完了,燈也裝了,變壓器也裝了,線了定了,開關接線盒也有了,還有什么?還有等電位聯結。
游泳池應設置輔助等電位聯結。輔助等電位聯結必須將0、1及2區內所有裝置外可導電部分,與位于這些區域內的外露可導電部分的保護線連接起來,并經過總接地端子與接地裝置相連。具體應包括如下部分:
(1)水池構筑物的所有金屬部件,金屬管道、跳水板臺中的金屬部件和鋼筋;
(2)與池水循環系統有關的電氣設備的金屬配件,包括水泵電動機;
(3)水下照明燈的電源及燈盒、爬梯、扶手、給水口、排水口及變壓器外殼等。
這下才算是真的做好了,把以上這些做好,剩下的就是選一款安全的好燈了
AQUA愛克泳池燈不僅具有防水、低電壓,性能穩定,安全可靠等特點,多功能多彩高亮的獨特設計,除了滿足游泳池照明功能外,更為游泳池多多彩絢麗提供無限的可能,無疑是泳池業主及經營者的理想選擇!根據不同安裝設計,AQUA愛克泳池燈分為三個大類,分別是掛壁式泳池燈、預埋式泳池燈和水景燈。
AQUA掛壁式泳池燈特點:
VDE防水電線,AC12V人體安全電壓,IP68防護等級(可直接浸入水里),運行安全可靠,無后顧之憂;
采用全塑料、不銹鋼316/304、PC鏡片等材質,結構堅固,防腐防銹;
密封性好,透光系數高、抗紫外線、不吸塵、不易變形,使用壽命長;
多種顏色變幻模式,高亮度,顯色性好,光衰慢,低功耗;
外觀設計時尚新穎,掛壁式簡易安裝,多種型號如貝殼型的超亮泳池彩燈、耐高溫的不銹鋼溫泉燈等任您選擇,照亮您的夜晚,豐富您的生活。
AQUA愛克預埋式泳池水下燈特點:
IP68防水等級,高品質光源,顏色可定制,密封性穩固堅韌;
可承受工作環境溫度為-20℃~40℃,如有需要還可定制為50℃;
大燈珠45度光束角,小燈珠120光束角,范圍大、光照強;可定制顏色(單色或七彩),浪漫氛圍,奇幻色彩,自由選擇。
電鍍304不銹鋼面,造型各異,如經典款的系列泳池燈、不銹鋼的階梯燈還有非常受歐美歡迎的不銹鋼水下燈等,不管是用于SPA、泳池還是水上樂園都可以編織屬于您的幻彩王國,奢美光影,璀璨奪目。
AQUA愛克水景燈特點:
燈罩玻璃通過高強度鋼化,耐熱、耐壓,不易老化;潔凈平滑,便于清潔;
IP68防水等級,燈身304不銹鋼材質,外形流暢優美,有效防止溴和氯的侵蝕,防腐耐用
水景燈底盤采用螺絲固定,裝卸方便;12V低壓安全電,運行安全可靠;
高品質LED光源,高質量鹵素燈珠,穿透性佳,可呈現各種單色及自由組合色彩,猶如極光天幕,隨心變換。

AQUA泳池燈高效、節能、環保、低功耗,相比市面上的普通水下燈節能80%;優質材料外殼,性能穩定,運行安全,使用壽命長;還有適用于ios和Android系統的WIFI燈組控制器;泳池燈配有燈組控制箱及遙控器,控制燈組最大可達3000W;RGB同步模式,可遠距離遙控同組燈光同步變色,功能齊全,可廣泛用于泳池、溫泉、水上樂園、噴泉池等工程項目,完善您的方案設計,讓幸福灑滿整個夜晚。

